
︎ Let There Be Light
Redesigning Campus Lighting Strategies
Our project addresses the overwhelming and poorly designed lighting in Studio Reassembled, which causes eye strain, headaches, and disrupts health. By enhancing natural light, creating adaptable dark zones, and introducing energy-efficient, customizable lighting solutions, we aim to improve comfort, productivity, and long-term well-being. These interventions balance immediate fixes with scalable, future-oriented strategies, transforming the space into a healthier and more user-friendly environment.
By Vishakha Bagarao ︎ , Elliot Reid ︎, Zihan Zhang ︎,


Name: Sarah Hana Kim
Age: 23
Location: Northwood, Ann Arbor, MI
Current Role: 2nd Year Architecture Graduate Student
Additional Education: Business Minor
Current Living Condition: Grandparents live in Troy,MI.
Born in Korea, Sarah moved to Michigan with her family as a first-generation immigrant. She is financially independent, managing her education with need-based scholarships she secured on her own. Her father’s recent layoff has added financial pressure, making her determined to succeed in both architecture and her business minor.
Age: 23
Location: Northwood, Ann Arbor, MI
Current Role: 2nd Year Architecture Graduate Student
Additional Education: Business Minor
Current Living Condition: Grandparents live in Troy,MI.
Born in Korea, Sarah moved to Michigan with her family as a first-generation immigrant. She is financially independent, managing her education with need-based scholarships she secured on her own. Her father’s recent layoff has added financial pressure, making her determined to succeed in both architecture and her business minor.

Persona Map
Health & Challenges: Sarah manages health issues like migraines, eye strain, epilepsy, and a latex allergy. Long hours under artificial light in the studio can strain her well-being, but she remains committed to her studies.
Goals: Sarah seeks to balance her workload to minimize health triggers, support her family in Troy, and stay connected with her grandparents through virtual check-ins.
Needs: Adaptable Lighting: Adjustable, high-quality lighting in the studio that can reduce eye strain and migraine triggers.
Health-Conscious Environment: An ergonomic workspace with materials suitable for her allergies and lighting to mitigate epilepsy risks.
Time & Stress Management: A balanced routine that allows her to keep up with studies, work, and family obligations without overextending.
Ideal Studio Experience: Sarah envisions a workspace that supports her health, helping her focus without discomfort. She values flexibility, including lighting solutions and ergonomic seating, to stay energized for long study hours while maintaining connections with her family in Troy.
Why
In many studio spaces, inadequate lighting leads to eye strain, fatigue, and reduced concentration. Architecture students, spending long hours under artificial light, experience disrupted sleep cycles, increased stress, and lower productivity. Research shows that poor lighting, especially from fluorescent fixtures, negatively affects cognitive function, mood, and health. In studio Reassembled Space, the continued use of fluorescent lights, lack of adequate lighting and overuse of variety of lights contributes to these issues. Surveys found 69% of students who uses studio reassembled space experienced eye strain, and 63% preferred daylight due to dissatisfaction with artificial lighting.

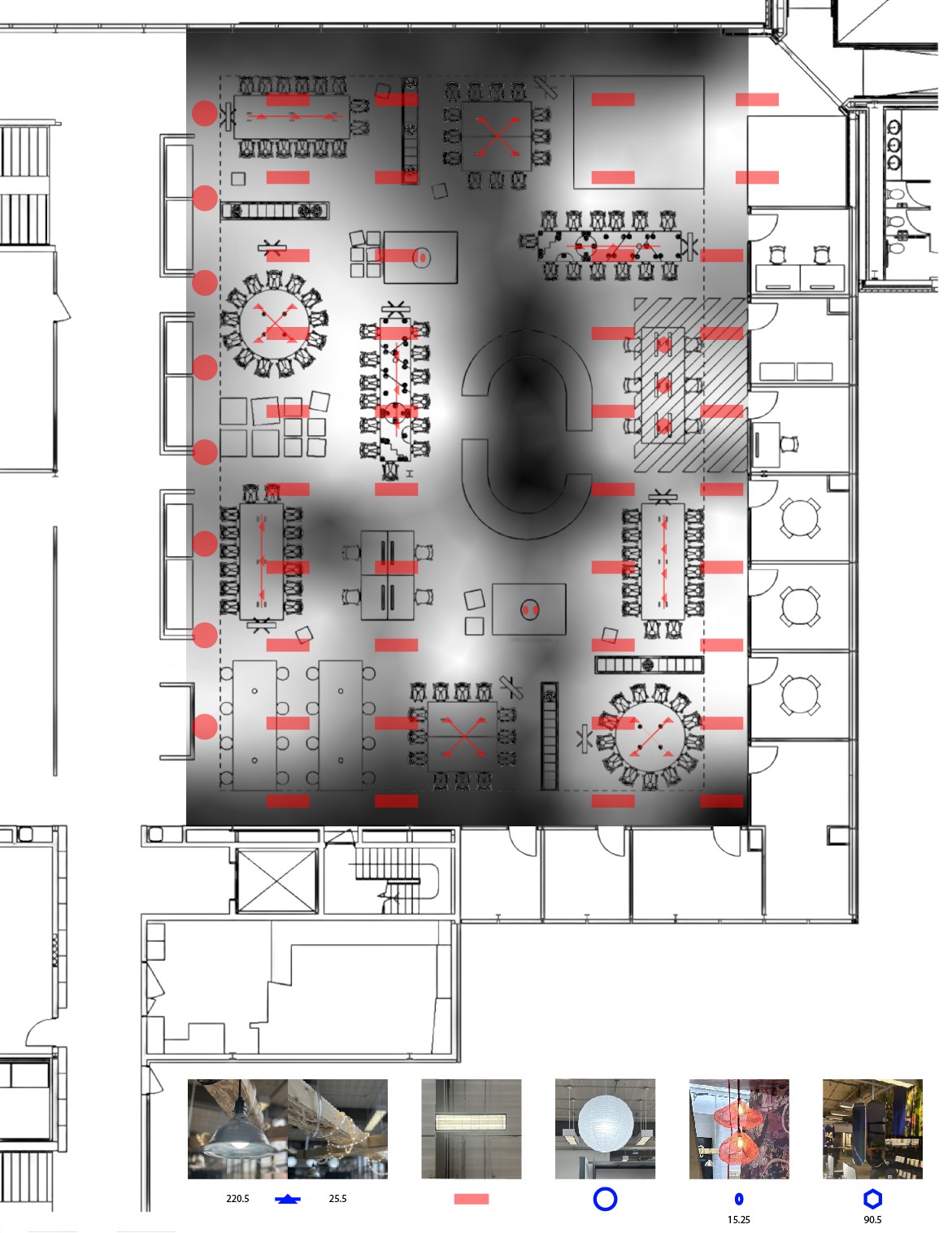
Studio Reassembled Gradient Map
(Measured By Lightmeter)
(Measured By Lightmeter)



Current Lighting Situation in Studio Reassembled
How
Inspired by Jie Zhao’s Healthy Building and Human-Centric Lighting, we propose adaptable solutions to improve lighting conditions.
- Create responsive lighting units using reclaimed materials and fresnel lenses to simulate natural sunlight by mimicking outdoor light conditions with sensors that adjust LED color temperature and intensity, providing an affordable and eco-friendly solution for windowless spaces.
- A human-centered lighting system with tunable LEDs and dimmable, task-specific options supports circadian rhythms, reduces eye strain, and enhances focus by shifting between cooler daytime light for alertness and warmer evening light for relaxation.
- Ensuring uniform lighting and integrating natural daylight through reflective surfaces and material changes creates a consistent, comfortable, and energy-efficient studio environment that enhances productivity and supports student health.


Adaptive LEDs

Lightshelves on Northern Window
What
We propose multilayered lighting design, by prioritizing daylighting in the studio reassembled spaces with skylights and reflectors , the design ensures students are exposed to an optimal light spectrum throughout the day. This approach not only enhances cognitive functions like memory and concentration but also supports physical and mental well-being.
Using dimmable LEDs to align with natural cycles and reduce blue light exposure, creating dark zones with blackout curtains for respite, diffusers/ partition to reduce glare, and provide customizable lighting, empower students to manage their lighting environment and promoting self-regulation. This adaptive design will create healthier, more productive studio spaces that support both immediate and long-term needs. These solutions balance natural and artificial light to meet diverse needs.
So What
Lighting has a profound effect on human health, and poorly designed lighting can increase stress and lower productivity. By introducing a circadian lighting system in the Studio reassembled space, we aim to create a healthier, more supportive work environment that enhances student well-being. Since lighting impacts mood and cognitive function, this proposal offers a model for improving academic spaces. Just as natural light boosts alertness and performance, the strategic use of adaptive lighting can lead to better focus, reduced stress, and higher productivity. Even small improvements in lighting design can make a significant difference in both health and performance outcomes for students.


Improvements in Lighting Condition
Design To Outcomes
Improved lighting will create a better environment for all users.
- Improve cognitive functions like memory and concentration.
- Support healthier sleep cycles, leading to better overall well-being.
- Enhance productivity.
- Reduce stress levels in high-pressure environments.

Design to Outcome
Links to Follow:
︎︎︎Two Page Report
︎︎︎Final Video
︎
Works Cited
- International WELL Building Institute. (2021). WELL Building Standard v2. Accessed on December 23, 2021. https://v2.wellcertified.com/wellv2/en/overview
- Moore-Ede, Martin, et al. “Lights Should Support Circadian Rhythms: Evidence-Based Scientific Consensus.” Frontiers, Frontiers, 20 Sept. 2023,
- Thau L, Gandhi J, Sharma S. Physiology, Cortisol (https://www.ncbi.nlm.nih.gov/books/NBK538239/). In: StatPearls [Internet]. Treasure Island, FL: StatPearls Publishing; 2021. Accessed 12/10/2021.
-
Jie Zhao. (2024). Healthy Building and Human-Centric Lighting. Accessed on November 30, 2024. https://drive.google.com/file/d/1LGF-fu9DTTkKto3uv1yoKdo12Bi6h_c2/view?pli=1